
Hieno remonttia kokenut kaksio aivan ydinkeskustasta. Asuntoon on vaihdettu laminaattilattia ja seinät on maalattu.
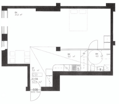
Keittiössä on paljon kaapistoja ja tilaan mahtuu pieni ruokapöytä. Isot ikkunat tuovat asuntoon paljon luonnonvaloa ja leveät ikkunalaudat ovat kaunis sisustuselementti. Erilliseen makuuhuoneeseen saa vaivatta sängyn lisäksi muutkin tarvittavat huonekalut ja myös makuuhuoneessa on hyvin kaappitilaa.
Asunto soveltuu kokonsa puolesta hyvin myös kimppa-asunnoksi. Erilliset huoneet sopivat kimppa-asumiseen. Lisäksi keittiö ja wc sijoittuvat siten, ettei niiden läpi tarvitse kulkea.
Autopaikkoja löytyy sisäpihalta ja niiden vuokraustilannetta voi tiedustella tarvittaessa. Näihin koteihin ovat myös lemmikit tervetulleita!
Vuokrattavana hyväkuntoisia kaupunkiasuntoja Porin ydinkeskustassa Itäpuiston ja Antinkadun kulmauksessa. Asunto Oy Antinkatu 14 kattaa seitsemän kerrosta, joista viisi on asuinkerroksia. Ensimmäisessä tasossa sijaitsevat liiketilat ja ylhäältä löytyvät sauna- sekä pesutilat asukkaiden käyttöön.
Lisäksi yhtiössä on kuivaushuone, vinttikomerot, kellarikomerot sekä urheiluvälinevarasto asukkaiden käytössä.
Rauhallinen ja hyvin hoidettu taloyhtiö tarjoaa hyvät puitteet tasokkaaseen asumiseen. Asuntoja on kunnostettu nykyajan vaatimuksia ajatellen ja niissä on käytetty laadukkaita materiaaleja. Tästä taloyhtiöstä löytyy asuntoja aina kompakteista yksiöitä suuriin neliöihin.
Taloyhtiö sijaitsee keskeisellä paikalla, joten kaikki palvelut ovat saatavilla heti ulko-ovelta. Löydät useita ravintoloita ja kahviloita kävelyetäisyydellä ja Porin torikin sijaitsee vain korttelin päässä.
Lisätietoa asuntohakemuksesta ja sen jättämisestä voit lukea painamalla tästä!
Tämän kohteen esittelyyn osallistuminen vaatii asuntohakemuksen täyttämisen. Syitä tähän voi olla esimerkiksi kova kysyntä tai kohteen sijainti. Täytä asuntohakemus ja olemme sinuun yhteydessä näyttöaikaan liittyen mahdollisimman pikaisesti.
Olemme pahoillamme, mutta tämän kohteen näytöt ovat toistaiseksi suljettuna. Yleensä tähän on syynä kova kysyntä, jolloin näyttö on jo täynnä. Palaa myöhemmin katsomaan onko näyttö auennut uudestaan.
Avoinna ma-pe 9-17. Soittamisen sijaan voit täyttää myös näyttöajan ehdotuksen yläpuolelta.
KN-4665
Antinkatu 14
,
28100
Pori
01.08.2022
Kerrostalo
Kaksio
2h+k+kph
52
m²
2/7
Kyllä
Hyvä
620.00
€/kk
1 kuukauden vuokraa vastaava summa
1 kuukauden vuokraa vastaava summa ja henkilötakaus
2 kuukauden vuokraa vastaava summa
3 kuukauden vuokraa vastaava summa
(Vuokranantaja hyväksyy vakuudeksi jonkin yllä mainituista vakuustyypeistä)
0€ luottotiedolliselle/ sopimuksen mukaan
2 kuukauden vuokraa vastaava summa
3 kuukauden vuokraa vastaava summa
(Vuokranantaja hyväksyy vakuudeksi jonkin yllä mainituista vakuustyypeistä)
3 kuukauden vuokraa vastaava summa
(Vuokranantaja hyväksyy vakuudeksi vain 3 kuukauden vuokraa vastaavan summan)
3 kuukauden vuokraa vastaava summa
(Vuokranantaja hyväksyy vakuudeksi vain 3 kuukauden vuokraa vastaavan summan)
3 kuukauden vuokraa vastaava summa
(Vuokranantaja hyväksyy vakuudeksi vain 3 kuukauden vuokraa vastaavan summan)
Voit nyt myös ostaa vuokravakuuden tähän asuntoon hintaan 19,90€/kk. Tilinavaus- ja hoitokulut 0€. Voit valita Klik Vakuuspalvelun vakuudeksi asuntohakemusta täyttäessäsi.
Lue lisää täältä!
Voit nyt myös ostaa vakuuden tähän asuntoon hintaan 24,90€/kk. Tilinavaus- ja hoitokulut 0€. Voit valita Klik Vakuuspalvelun vakuudeksi asuntohakemusta täyttäessäsi.
Lue lisää täältä!
Voit nyt myös ostaa vakuuden tähän asuntoon hintaan 29,90€/kk. Tilinavaus- ja hoitokulut 0€. Voit valita Klik Vakuuspalvelun vakuudeksi asuntohakemusta täyttäessäsi.
Lue lisää täältä!
Voit nyt myös ostaa vakuuden tähän asuntoon hintaan 34,90€/kk. Tilinavaus- ja hoitokulut 0€. Voit valita Klik Vakuuspalvelun vakuudeksi asuntohakemusta täyttäessäsi.
Lue lisää täältä!
Kyllä (1kk vuokraa vastaava summa)
Sallittu
Ei sallittu
Vuokralainen tekee oman sähkösopimuksen
Lämmitys sisältyy vuokraan, Kaukolämpö
23€/hlö/kk
laattalattia; laattaseinä, , allaskaappi; peilikaappi; muuta säilytystilaa WC:ssä, suihku, , pesukonevalmius; taloyhtiössä pesutupa, lattialämmitys; rättipatteri
avokeittiö, laminaattitasot keittiössä, keraaminen- tai induktioliesi; liesituuletin, astianpesukone (45cm), jääkaappipakastin, mikrohylly
As Oy Antinkatu 14
Kaapeli
Premico Kodit/ Kari Niemi
RTK-Palvelu Oy
Tähän kohteeseen ei ole joko hankittu tai välitysliike ei ole vastaanottanut toimeksiantajalta energiatodistusta välitystehtävän hoitamiseksi. Lisätietoja siitä mitä merkitystä energiatodistuksen puuttumisella on vuokralaiselle, voit kysyä asiakaspalvelustamme toimisto@klikasuntovuokraus.fi
C
















