
Asunto on kauttaaltaan siistissä kunnossa ja pintoja on vastikään päivitetty. Lattiat ovat vaaleaa siistiä muovimattoa ja seinäpinnat ovat siistit.
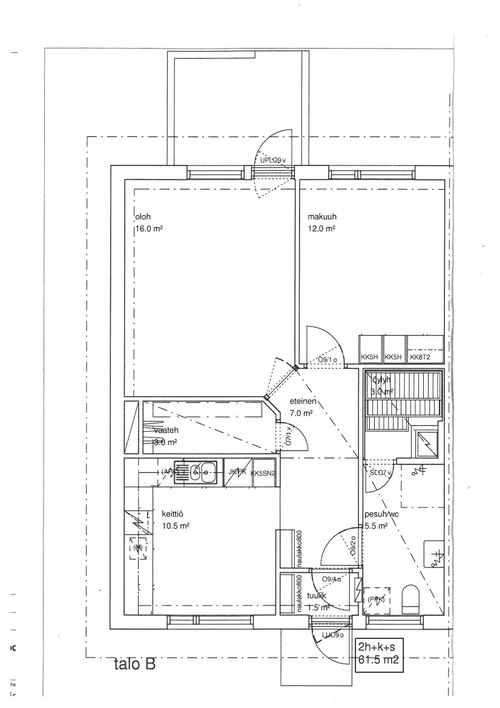
Makuuhuone on hyvän kokoinen ja säilytystilaa on hyvin kaappien muodossa, jonka lisäksi asunnosta löytyy suuri vaatehuone. Tilavasta olohuoneesta on käynti omalle takapihalle, jossa suojaisa oma piha ja terassi.
Keittiössä on hyvin kaappitilaa ja ruokapöytäkin mahtuu. Lisäksi keittiössä valmis paikka astianpesukoneelle.
Kylpyhuone on reilun kokoinen ja pesukoneelle on hyvä paikka. Kylpyhuoneen kruunaa lattialämmitys ja oma sauna. Käytössäsi on myös säilytystilat ulkovarastossa. Pihassa on mahdollisuus autokatospaikkaan 5€/kk.
Pihapiiri on päättyvän tien päässä, joten ohikulkua ei ole ja alue on rauhallinen. Suoraan etuovelta lähtee lisäksi lenkkipolut rauhallisiin metsämaisemiin.
Muut ominaisuudet:Lattiat: muovimattolattiat, seinät: maalatut seinät; tapetoidut seinät, katto: maalattu katto, ikkunat:sälekaihtimet; tuuletusikkunat, erillinen makuuhuone; makuuhuoneessa säilytystilaa; makuuhuoneessa vaatekaapit; parisänky mahtuu makuutilaan; erillinen vaatehuone, avoterassi, asunnolle kuuluu häkkivarasto, muut tilat: terassi; oma piha; koneellinen ilmanvaihto; kuraeteinenVakuus: 100€ luottotiedolliselle / Sopimuksen mukaan
Lisätietoa asuntohakemuksesta ja sen jättämisestä voit lukea painamalla tästä!
Tämän kohteen esittelyyn osallistuminen vaatii asuntohakemuksen täyttämisen. Syitä tähän voi olla esimerkiksi kova kysyntä tai kohteen sijainti. Täytä asuntohakemus ja olemme sinuun yhteydessä näyttöaikaan liittyen mahdollisimman pikaisesti.
Olemme pahoillamme, mutta tämän kohteen näytöt ovat toistaiseksi suljettuna. Yleensä tähän on syynä kova kysyntä, jolloin näyttö on jo täynnä. Palaa myöhemmin katsomaan onko näyttö auennut uudestaan.
Avoinna ma-pe 9-17. Soittamisen sijaan voit täyttää myös näyttöajan ehdotuksen yläpuolelta.
KN-4104
Haapatie 4
,
28400
Ulvila
Heti vapaa
Rivitalo
Kaksio
2h+k+kph+s+vh+t
62
m²
1/1
Ei
Hyvä
731.06
€/kk
1 kuukauden vuokraa vastaava summa
1 kuukauden vuokraa vastaava summa ja henkilötakaus
2 kuukauden vuokraa vastaava summa
3 kuukauden vuokraa vastaava summa
(Vuokranantaja hyväksyy vakuudeksi jonkin yllä mainituista vakuustyypeistä)
100€ luottotiedolliselle hakijalle / sopimuksen mukaan
2 kuukauden vuokraa vastaava summa
3 kuukauden vuokraa vastaava summa
(Vuokranantaja hyväksyy vakuudeksi jonkin yllä mainituista vakuustyypeistä)
3 kuukauden vuokraa vastaava summa
(Vuokranantaja hyväksyy vakuudeksi vain 3 kuukauden vuokraa vastaavan summan)
3 kuukauden vuokraa vastaava summa
(Vuokranantaja hyväksyy vakuudeksi vain 3 kuukauden vuokraa vastaavan summan)
3 kuukauden vuokraa vastaava summa
(Vuokranantaja hyväksyy vakuudeksi vain 3 kuukauden vuokraa vastaavan summan)
Voit nyt myös ostaa vuokravakuuden tähän asuntoon hintaan 19,90€/kk. Tilinavaus- ja hoitokulut 0€. Voit valita Klik Vakuuspalvelun vakuudeksi asuntohakemusta täyttäessäsi.
Lue lisää täältä!
Voit nyt myös ostaa vakuuden tähän asuntoon hintaan 24,90€/kk. Tilinavaus- ja hoitokulut 0€. Voit valita Klik Vakuuspalvelun vakuudeksi asuntohakemusta täyttäessäsi.
Lue lisää täältä!
Voit nyt myös ostaa vakuuden tähän asuntoon hintaan 29,90€/kk. Tilinavaus- ja hoitokulut 0€. Voit valita Klik Vakuuspalvelun vakuudeksi asuntohakemusta täyttäessäsi.
Lue lisää täältä!
Voit nyt myös ostaa vakuuden tähän asuntoon hintaan 34,90€/kk. Tilinavaus- ja hoitokulut 0€. Voit valita Klik Vakuuspalvelun vakuudeksi asuntohakemusta täyttäessäsi.
Lue lisää täältä!
Kyllä (1kk vuokraa vastaava summa)
Sallittu
Ei sallittu
Vuokralainen tekee oman sähkösopimuksen
Maalämpö
9€/kk/hlö
laattalattia; laattaseinä, peilikaappi, suihku, pesukonevalmius, lattialämmitys; sauna; avattava ikkuna
erillinen keittiö, laminaattitasot keittiössä, keraaminen- tai induktioliesi; liesituuletin, pesukoneliitos, jääkaappipakastin, tilaa isolle ruokapöydälle; paljon kaappitilaa; paljon työskentelytilaa
Tähän kohteeseen ei ole joko hankittu tai välitysliike ei ole vastaanottanut toimeksiantajalta energiatodistusta välitystehtävän hoitamiseksi. Lisätietoja siitä mitä merkitystä energiatodistuksen puuttumisella on vuokralaiselle, voit kysyä asiakaspalvelustamme toimisto@klikasuntovuokraus.fi
Ei energiatodistusta
















