
Ensimmäisen kerroksen koti omalla saunalla luhtitalosta!
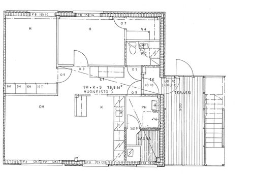
Hyvällä pohjaratkaisulla varustettu kunnostettu huoneisto luhtitalon ensimmäisestä kerroksesta. Tässä asunnossa on hiljattain uusittu puukuvioinen laminaattilattia ja seinänpinnat ovat siistissä kunnossa.
Asunto sopii lapsiperheelle tilansa puolesta ja asuinalue on rauhallinen. Keittiössä on hyväkuntoiset kodinkoneet ja tilan yhteyteen sopii hyvin ruokapöytä. Olohuone sijaistee keittiön vieressä ja sinne mahtuu isompikin kulmasohva. Asunnolle kuuluu tilava oma terassi. Molemmat makuuhuoneet ovat reilun kokoisia ja niiden yhteydessä on kaappitilaa. Erillinen vaatehuone asunnossa tuo myös hyvin säilytystilaa.
Kylpyhuone on siistissä kunnossa. Pyykinpesukoneelle on liitännät valmiina. Kokonaisuuteen kuuluu oma sauna. Erillinen wc on käytännöllinen isomassa perheessä.
Taloyhtiö sijaitsee hyvien kulkuyhteyksien varrella ja alueelta löytyvät kaikki tarvittavat palvelut. Lähistöllä sijaitsevat muun muassa K-Market Ulvila, Friitalan koulu sekä Päiväkoti Tuulenpesä. Alueella on kattavasti myös ruokapaikkoja kuten pizzeria sekä Hesburger. Kirjastoonkin pääset helposti vaikka kävellen.
Pihassa autokatospaikka pistokkeella.
Lemmikit ovat tervetulleita tähän asuntoon.
Vakuus: 100€ luottotiedolliselle / Sopimuksen mukaan.
Ota rohkeasti yhteyttä, niin sovitaan kohteeseen yksityisesittely!
Kaikki muut kohteemme löydät kotisivuiltamme!
Muut ominaisuudet:
Lattiat: laminaattilattiat, seinät: maalatut seinät, katto: maalattu katto, ikkunat:sälekaihtimet; tuuletusikkunat, erillinen makuuhuone; useita makuuhuoneita; makuuhuoneessa säilytystilaa; parisänky mahtuu makuutilaan; erillinen vaatehuone, katettu terassi, Huoneistokohtaiset erilliset säilytystilat taloyhtiön käytännön mukaan; Erillinen varastotila sisältyy, muut tilat: autopaikat taloyhtiön käytännön mukaisesti; autokatospaikka vuokrattavissa; valoisa asunto; paljon ikkunoita; terassi; oma piha; päätyhuoneisto
Lisätietoa asuntohakemuksesta ja sen jättämisestä voit lukea painamalla tästä!
Tämän kohteen esittelyyn osallistuminen vaatii asuntohakemuksen täyttämisen. Syitä tähän voi olla esimerkiksi kova kysyntä tai kohteen sijainti. Täytä asuntohakemus ja olemme sinuun yhteydessä näyttöaikaan liittyen mahdollisimman pikaisesti.
Olemme pahoillamme, mutta tämän kohteen näytöt ovat toistaiseksi suljettuna. Yleensä tähän on syynä kova kysyntä, jolloin näyttö on jo täynnä. Palaa myöhemmin katsomaan onko näyttö auennut uudestaan.
Avoinna ma-pe 9-17. Soittamisen sijaan voit täyttää myös näyttöajan ehdotuksen yläpuolelta.
KN-5956
Nahkurinkaari 2
,
28400
Ulvila
Heti vapaa
Luhtitalo
Kolmio tai isompi
3h+avok+vh+kph+wc+s+t
76
m²
1/2
Ei
Hyvä
812.52
€/kk
Toistaiseksi voimassaoleva
1 kuukauden vuokraa vastaava summa
1 kuukauden vuokraa vastaava summa ja henkilötakaus
2 kuukauden vuokraa vastaava summa
3 kuukauden vuokraa vastaava summa
(Vuokranantaja hyväksyy vakuudeksi jonkin yllä mainituista vakuustyypeistä)
100€ luottotiedolliselle hakijalle / sopimuksen mukaan
2 kuukauden vuokraa vastaava summa
3 kuukauden vuokraa vastaava summa
(Vuokranantaja hyväksyy vakuudeksi jonkin yllä mainituista vakuustyypeistä)
3 kuukauden vuokraa vastaava summa
(Vuokranantaja hyväksyy vakuudeksi vain 3 kuukauden vuokraa vastaavan summan)
3 kuukauden vuokraa vastaava summa
(Vuokranantaja hyväksyy vakuudeksi vain 3 kuukauden vuokraa vastaavan summan)
3 kuukauden vuokraa vastaava summa
(Vuokranantaja hyväksyy vakuudeksi vain 3 kuukauden vuokraa vastaavan summan)
Voit nyt myös ostaa vuokravakuuden tähän asuntoon hintaan 19,90€/kk. Tilinavaus- ja hoitokulut 0€. Voit valita Klik Vakuuspalvelun vakuudeksi asuntohakemusta täyttäessäsi.
Lue lisää täältä!
Voit nyt myös ostaa vakuuden tähän asuntoon hintaan 24,90€/kk. Tilinavaus- ja hoitokulut 0€. Voit valita Klik Vakuuspalvelun vakuudeksi asuntohakemusta täyttäessäsi.
Lue lisää täältä!
Voit nyt myös ostaa vakuuden tähän asuntoon hintaan 29,90€/kk. Tilinavaus- ja hoitokulut 0€. Voit valita Klik Vakuuspalvelun vakuudeksi asuntohakemusta täyttäessäsi.
Lue lisää täältä!
Voit nyt myös ostaa vakuuden tähän asuntoon hintaan 34,90€/kk. Tilinavaus- ja hoitokulut 0€. Voit valita Klik Vakuuspalvelun vakuudeksi asuntohakemusta täyttäessäsi.
Lue lisää täältä!
Kyllä (1kk vuokraa vastaava summa)
Sallittu
Ei sallittu
Vuokralainen tekee oman sähkösopimuksen
Sisältyy vuokraan. kaukolämpö
10€/hlö/kk
muovimatto; laattaseinä, peilikaappi, suihku, pesukonevalmius, kylpyhuoneessa lattialämmitys; oma sauna; kylpyhuoneessa avattava ikkuna
avokeittiö, terästasot keittiössä; laminaattitasot keittiössä, sähköliesi; liesituuletin, pesukoneliitos, astianpesukone on mahdollista asentaa, jääkaappipakastin, tilaa isolle ruokapöydälle; paljon kaappitilaa; paljon työskentelytilaa; suuri tiskipöytä
Tähän kohteeseen ei ole joko hankittu tai välitysliike ei ole vastaanottanut toimeksiantajalta energiatodistusta välitystehtävän hoitamiseksi. Lisätietoja siitä mitä merkitystä energiatodistuksen puuttumisella on vuokralaiselle, voit kysyä asiakaspalvelustamme toimisto@klikasuntovuokraus.fi
Ei energiatodistusta



















