
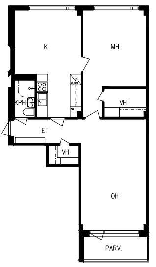
Valoisa ja pinnoiltaan siisti asunto Rautatienpuistokadulta. Läpitalon koti, jonka huoneet ovat tilavia. Keittiön yhteydessä on huone, jonne saa ruokapöydän mahtumaan. Kylpyhuone on siistikuntoinen. Olohuoneen yhteydessä on parveke sisäpihan suuntaan. Säilytystilaa tuovat kaksi erillistä vaatehuonetta.
Taloyhtiö laajakaistan perusnopeus sisältyy vuokraan ja on edullinen päivittää tarvittaessa nopeampaan.
Hissi maan tasalta!
13 tärkeintä uudistusta:
Sijainti mitä ihanteellisin, uuteen matkakeskukseen, rautatieasemalle ja SAMK kampukselle matkaa vain noin 400m. Erinomainen sijainti sinulle joka haluat asua palveluiden välittömässä läheisyydessä, sillä tästä taloyhtiöstä on matkaa kävelykadulle n.150 metriä. Esimerkiksi Sokos ja kauppakeskus Isokarhu sijaitsevat vain noin 600 m päässä. Uudella matkakeskuksella on pysäkki Citybussille, jolla pääsee helposti liikkumaan myös Yliopistokeskukselle ja kauppakeskus Puuvillaan.
Lisätietoa asuntohakemuksesta ja sen jättämisestä voit lukea painamalla tästä!
Tämän kohteen esittelyyn osallistuminen vaatii asuntohakemuksen täyttämisen. Syitä tähän voi olla esimerkiksi kova kysyntä tai kohteen sijainti. Täytä asuntohakemus ja olemme sinuun yhteydessä näyttöaikaan liittyen mahdollisimman pikaisesti.
Olemme pahoillamme, mutta tämän kohteen näytöt ovat toistaiseksi suljettuna. Yleensä tähän on syynä kova kysyntä, jolloin näyttö on jo täynnä. Palaa myöhemmin katsomaan onko näyttö auennut uudestaan.
Avoinna ma-pe 9-17. Soittamisen sijaan voit täyttää myös näyttöajan ehdotuksen yläpuolelta.
KN-5027
Rautatienpuistokatu 2
,
28130
Pori
Heti vapaa
Kerrostalo
Kolmio tai isompi
2-3h+k+kph+2xvh+p
69
m²
3/11
Kyllä
590.00
€/kk
Toistaiseksi voimassaoleva vuokrasopimus
1 kuukauden vuokraa vastaava summa
1 kuukauden vuokraa vastaava summa ja henkilötakaus
2 kuukauden vuokraa vastaava summa
3 kuukauden vuokraa vastaava summa
(Vuokranantaja hyväksyy vakuudeksi jonkin yllä mainituista vakuustyypeistä)
1 kuukauden vuokraa vastaava summa ja henkilötakaus / 2 kuukauden vuokraa vastaava summa
2 kuukauden vuokraa vastaava summa
3 kuukauden vuokraa vastaava summa
(Vuokranantaja hyväksyy vakuudeksi jonkin yllä mainituista vakuustyypeistä)
3 kuukauden vuokraa vastaava summa
(Vuokranantaja hyväksyy vakuudeksi vain 3 kuukauden vuokraa vastaavan summan)
3 kuukauden vuokraa vastaava summa
(Vuokranantaja hyväksyy vakuudeksi vain 3 kuukauden vuokraa vastaavan summan)
3 kuukauden vuokraa vastaava summa
(Vuokranantaja hyväksyy vakuudeksi vain 3 kuukauden vuokraa vastaavan summan)
Voit nyt myös ostaa vuokravakuuden tähän asuntoon hintaan 19,90€/kk. Tilinavaus- ja hoitokulut 0€. Voit valita Klik Vakuuspalvelun vakuudeksi asuntohakemusta täyttäessäsi.
Lue lisää täältä!
Voit nyt myös ostaa vakuuden tähän asuntoon hintaan 24,90€/kk. Tilinavaus- ja hoitokulut 0€. Voit valita Klik Vakuuspalvelun vakuudeksi asuntohakemusta täyttäessäsi.
Lue lisää täältä!
Voit nyt myös ostaa vakuuden tähän asuntoon hintaan 29,90€/kk. Tilinavaus- ja hoitokulut 0€. Voit valita Klik Vakuuspalvelun vakuudeksi asuntohakemusta täyttäessäsi.
Lue lisää täältä!
Voit nyt myös ostaa vakuuden tähän asuntoon hintaan 34,90€/kk. Tilinavaus- ja hoitokulut 0€. Voit valita Klik Vakuuspalvelun vakuudeksi asuntohakemusta täyttäessäsi.
Lue lisää täältä!
Kyllä (1kk vuokraa vastaava summa)
Sopimuksen mukaan
Ei sallittu
Vuokralainen tekee oman sähkösopimuksen
Lämmitys sisältyy vuokraan, Kaukolämpö
24€/hlö/kk
muovimatto, suihku, taloyhtiössä pesutupa
erillinen keittiö, terästasot keittiössä; laminaattitasot keittiössä, sähköliesi; liesituuletin, jääkaappi
As Oy Porin Rautatienpuistokatu 2
Kaapeli
Isännöinti ja Tilintarkastus Leivo Oy
City Talohuolto Oy
Tähän kohteeseen ei ole joko hankittu tai välitysliike ei ole vastaanottanut toimeksiantajalta energiatodistusta välitystehtävän hoitamiseksi. Lisätietoja siitä mitä merkitystä energiatodistuksen puuttumisella on vuokralaiselle, voit kysyä asiakaspalvelustamme toimisto@klikasuntovuokraus.fi
D



















