
Valoisa koti viihtyisällä pihapiirillä!
Ensimmäisen kerroksen asunto hyvällä sijainnilla palveluiden ääreltä.
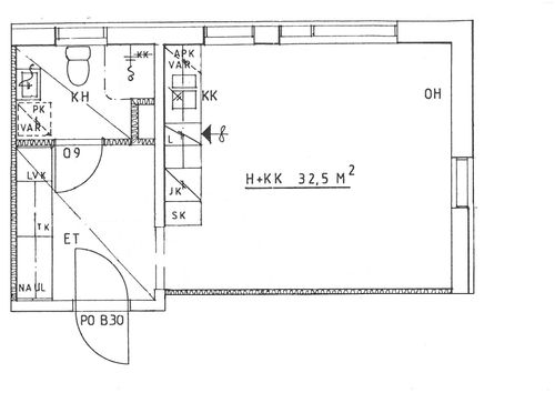
Tässä huoneistossa yleisilme on hyvin siisti ja asunto on valoisa. Asunnon olohuone ja keittiö ovat tilavia ja kulku huoneistossa on esteetön. Kylpyhuone on siistikuntoinen ja pesukoneelle on liitännät. Eteisessä on reilusti kaappitilaa säilytystä ajatellen.
Piha-alue on kauniiksi hoidettu ja talon läheisyydessä sijaitsevat mm. kauppa, uimahalli sekä puistot.
Yhtiöstä löytyvät saunatilat ( sauna 7€/kk), pesutupa, mankeli, kuivaushuone, ulkoiluväline- sekä irtaimistovarasto ja jäähdytyskellari.
Lähin kauppa n. 500m päässä.
Vesi sisältyy vuokraan!
Vakuus: 100€ luottotiedolliselle / Sopimuksen mukaan
Ota rohkeasti yhteyttä, niin sovitaan kohteeseen yksityisesittely!
Kaikki muut kohteemme löydät kotisivuiltamme!
*** Vuokralaisen on mahdollista korvata vakuus Klik Vakuuspalvelulla. Vakuuspalvelun hinta on alk. 19,90€/kk, ei avausmaksua tai tilinhoitomaksua! Lue lisää: https://www.klikasuntovuokraus.fi/vuokralaiset/vakuuspalvelu ***
***Tämän kohteen kohdenumero on KN-7266***
*** Tieto autopaikasta: . Mahdollisten taloyhtiön omistamien autopaikkojen vuokraustilanne tulee selvittää isännöitsijältä***
*** Sopimussakko: Kyllä (1kk vuokraa vastaava summa). Jos "Kyllä", niin asunnossa on 12 kuukauden kestoinen sopimussakkoehto. Voit irtisanoa asunnon koska tahansa, mutta irtisanominen ennen aikaisesti johtaa 1 kuukauden sopimussakkoon. ***
*** Tämän kohteen valokuvat ovat: Vuokrattavan asunnon valokuvat ***
Muut tiedot:
laminaattilattiat, maalatut seinät; tapetoidut seinät, maalattu katto, tuuletusikkunat, eteisessä kaapistot, parisänky mahtuu makuutilaan, , Huoneistokohtaiset erilliset säilytystilat taloyhtiön käytännön mukaan, autopaikat taloyhtiön käytännön mukaisesti; valoisa asunto; paljon ikkunoita
Lisätietoa asuntohakemuksesta ja sen jättämisestä voit lukea painamalla tästä!
Tämän kohteen esittelyyn osallistuminen vaatii asuntohakemuksen täyttämisen. Syitä tähän voi olla esimerkiksi kova kysyntä tai kohteen sijainti. Täytä asuntohakemus ja olemme sinuun yhteydessä näyttöaikaan liittyen mahdollisimman pikaisesti.
Olemme pahoillamme, mutta tämän kohteen näytöt ovat toistaiseksi suljettuna. Yleensä tähän on syynä kova kysyntä, jolloin näyttö on jo täynnä. Palaa myöhemmin katsomaan onko näyttö auennut uudestaan.
Avoinna ma-pe 9-17. Soittamisen sijaan voit täyttää myös näyttöajan ehdotuksen yläpuolelta.
KN-7266
Torpparintie 1
,
28450
Ulvila
Heti vapaa
Kerrostalo
Yksiö
1h+avok+kph
33
m²
1/2
Ei
Hyvä
347.26
€/kk
1 kuukauden vuokraa vastaava summa
1 kuukauden vuokraa vastaava summa ja henkilötakaus
2 kuukauden vuokraa vastaava summa
3 kuukauden vuokraa vastaava summa
(Vuokranantaja hyväksyy vakuudeksi jonkin yllä mainituista vakuustyypeistä)
100€ luottotiedolliselle hakijalle / sopimuksen mukaan
2 kuukauden vuokraa vastaava summa
3 kuukauden vuokraa vastaava summa
(Vuokranantaja hyväksyy vakuudeksi jonkin yllä mainituista vakuustyypeistä)
3 kuukauden vuokraa vastaava summa
(Vuokranantaja hyväksyy vakuudeksi vain 3 kuukauden vuokraa vastaavan summan)
3 kuukauden vuokraa vastaava summa
(Vuokranantaja hyväksyy vakuudeksi vain 3 kuukauden vuokraa vastaavan summan)
3 kuukauden vuokraa vastaava summa
(Vuokranantaja hyväksyy vakuudeksi vain 3 kuukauden vuokraa vastaavan summan)
Voit nyt myös ostaa vuokravakuuden tähän asuntoon hintaan 19,90€/kk. Tilinavaus- ja hoitokulut 0€. Voit valita Klik Vakuuspalvelun vakuudeksi asuntohakemusta täyttäessäsi.
Lue lisää täältä!
Voit nyt myös ostaa vakuuden tähän asuntoon hintaan 24,90€/kk. Tilinavaus- ja hoitokulut 0€. Voit valita Klik Vakuuspalvelun vakuudeksi asuntohakemusta täyttäessäsi.
Lue lisää täältä!
Voit nyt myös ostaa vakuuden tähän asuntoon hintaan 29,90€/kk. Tilinavaus- ja hoitokulut 0€. Voit valita Klik Vakuuspalvelun vakuudeksi asuntohakemusta täyttäessäsi.
Lue lisää täältä!
Voit nyt myös ostaa vakuuden tähän asuntoon hintaan 34,90€/kk. Tilinavaus- ja hoitokulut 0€. Voit valita Klik Vakuuspalvelun vakuudeksi asuntohakemusta täyttäessäsi.
Lue lisää täältä!
Kyllä (1kk vuokraa vastaava summa)
Sallittu
Ei sallittu
Vuokralainen tekee sähkösopimuksen
Lämmitys sisältyy vuokraan, Kaukolämpö
Sisältyy vuokraan
muovimatto; suihkutapetti, , peilikaappi, suihku, kylpyhuoneessa avattava ikkuna; taloyhtiössä sauna
avokeittiö, laminaattitasot keittiössä, sähköliesi; liesituuletin, jääkaappipakastin,
Tähän kohteeseen ei ole joko hankittu tai välitysliike ei ole vastaanottanut toimeksiantajalta energiatodistusta välitystehtävän hoitamiseksi. Lisätietoja siitä mitä merkitystä energiatodistuksen puuttumisella on vuokralaiselle, voit kysyä asiakaspalvelustamme toimisto@klikasuntovuokraus.fi











