
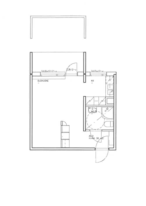
Ensimmäisen kerroksen yksiö hyvällä pohjaratkaisulla. Keittiö on yleisilmeeltään siisti ja kaappitilaa on hyvin. Keittiö ja olohuone ovat toimivasti vierekkäin. Tilavasta olohuoneesta käynti parvekkeelle, josta näkymät ovat sisäpihalle. Eteisessä lisää säilytystilaa kaappien mudossa.
Kylpyhuoneessa on suihkun lisäksi hyvä paikka pyykinpesukoneelle.
Vuokralaisella on käytössään säilytystilat ensimmäisessä kerroksessa. Yhteiskäytössä on mm. lisäksi sauna ja ulkovälinevarasto.
Muut ominaisuudet:
Lattiat: muovimattolattiat, seinät: maalatut seinät; tapetoidut seinät, katto: maalattu katto, ikkunat:tuuletusikkunat, makuualkovi; makuuhuoneessa säilytystilaa; makuuhuoneessa vaatekaapit; parisänky mahtuu makuutilaan, avoparveke (ei lasitusta), Huoneistokohtaiset erilliset säilytystilat taloyhtiön käytännön mukaan, muut tilat: autopaikat taloyhtiön käytännön mukaisesti; valoisa asunto; alkovi
Lisätietoa asuntohakemuksesta ja sen jättämisestä voit lukea painamalla tästä!
Tämän kohteen esittelyyn osallistuminen vaatii asuntohakemuksen täyttämisen. Syitä tähän voi olla esimerkiksi kova kysyntä tai kohteen sijainti. Täytä asuntohakemus ja olemme sinuun yhteydessä näyttöaikaan liittyen mahdollisimman pikaisesti.
Olemme pahoillamme, mutta tämän kohteen näytöt ovat toistaiseksi suljettuna. Yleensä tähän on syynä kova kysyntä, jolloin näyttö on jo täynnä. Palaa myöhemmin katsomaan onko näyttö auennut uudestaan.
Avoinna ma-pe 9-17. Soittamisen sijaan voit täyttää myös näyttöajan ehdotuksen yläpuolelta.
KN-4224
Torpparintie 3
,
28450
Vanha-Ulvila
Heti vapaa
Kerrostalo
Yksiö
1h+alkovi+kk+kph+p
30
m²
1/3
Ei
Hyvä
340.28
€/kk
1 kuukauden vuokraa vastaava summa
1 kuukauden vuokraa vastaava summa ja henkilötakaus
2 kuukauden vuokraa vastaava summa
3 kuukauden vuokraa vastaava summa
(Vuokranantaja hyväksyy vakuudeksi jonkin yllä mainituista vakuustyypeistä)
100€ luottotiedolliselle hakijalle / sopimuksen mukaan
2 kuukauden vuokraa vastaava summa
3 kuukauden vuokraa vastaava summa
(Vuokranantaja hyväksyy vakuudeksi jonkin yllä mainituista vakuustyypeistä)
3 kuukauden vuokraa vastaava summa
(Vuokranantaja hyväksyy vakuudeksi vain 3 kuukauden vuokraa vastaavan summan)
3 kuukauden vuokraa vastaava summa
(Vuokranantaja hyväksyy vakuudeksi vain 3 kuukauden vuokraa vastaavan summan)
3 kuukauden vuokraa vastaava summa
(Vuokranantaja hyväksyy vakuudeksi vain 3 kuukauden vuokraa vastaavan summan)
Voit nyt myös ostaa vuokravakuuden tähän asuntoon hintaan 19,90€/kk. Tilinavaus- ja hoitokulut 0€. Voit valita Klik Vakuuspalvelun vakuudeksi asuntohakemusta täyttäessäsi.
Lue lisää täältä!
Voit nyt myös ostaa vakuuden tähän asuntoon hintaan 24,90€/kk. Tilinavaus- ja hoitokulut 0€. Voit valita Klik Vakuuspalvelun vakuudeksi asuntohakemusta täyttäessäsi.
Lue lisää täältä!
Voit nyt myös ostaa vakuuden tähän asuntoon hintaan 29,90€/kk. Tilinavaus- ja hoitokulut 0€. Voit valita Klik Vakuuspalvelun vakuudeksi asuntohakemusta täyttäessäsi.
Lue lisää täältä!
Voit nyt myös ostaa vakuuden tähän asuntoon hintaan 34,90€/kk. Tilinavaus- ja hoitokulut 0€. Voit valita Klik Vakuuspalvelun vakuudeksi asuntohakemusta täyttäessäsi.
Lue lisää täältä!
Kyllä (1kk vuokraa vastaava summa)
Sallittu
Ei sallittu
Vuokralainen tekee oman sähkösopimuksen
Kaukolämpö
Sisältyy vuokraan
muovimatto; laattaseinä, peilikaappi, suihku; suihkukaappi, pesukonevalmius
keittokomero, terästasot keittiössä; laminaattitasot keittiössä, sähköliesi; liesituuletin, jääkaappipakastin, suuri tiskipöytä; mikrohylly
Tähän kohteeseen ei ole joko hankittu tai välitysliike ei ole vastaanottanut toimeksiantajalta energiatodistusta välitystehtävän hoitamiseksi. Lisätietoja siitä mitä merkitystä energiatodistuksen puuttumisella on vuokralaiselle, voit kysyä asiakaspalvelustamme toimisto@klikasuntovuokraus.fi
Ei energiatodistusta














