
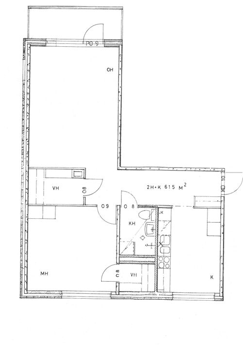
Kaikki pinnat tässä kodissa on juuri remontoitu ja läpitalon asunto on valoisa. Asunto sijaitsee ylimmässä kerroksessa.
Tilavasta olohuoneesta käynti parvekkeelle, josta näkymät ovat sisäpihalle.
Makuuhuoneen yhteydessä vaatehuone, joten säilytystilaa on hyvin. Toinen vaatehuone löytyy lisäksi eteisestä.
Kylpyhuoneessa on mm. peilikaappi sekä hyvä paikka pyykinpesukoneelle.
Keittiössä hyvin kaappitilaa ja ruokapöydänkin saa keittiöön, lisäksi keittiössä varaus astianpesukoneelle.
Vuokralaisella on käytössään säilytystilat ensimmäisessä kerroksessa. Yhteiskäytössä on lisäksi sauna ja ulkovälinevarasto.
Muut ominaisuudet:
Lattiat: laminaattilattiat, seinät: maalatut seinät, katto: maalattu katto, ikkunat:tuuletusikkunat, erillinen makuuhuone; makuuhuoneessa säilytystilaa; parisänky mahtuu makuutilaan; erillinen vaatehuone, avoparveke (ei lasitusta), Huoneistokohtaiset erilliset säilytystilat taloyhtiön käytännön mukaan, muut tilat: autopaikat taloyhtiön käytännön mukaisesti; valoisa asunto
Lisätietoa asuntohakemuksesta ja sen jättämisestä voit lukea painamalla tästä!
Tämän kohteen esittelyyn osallistuminen vaatii asuntohakemuksen täyttämisen. Syitä tähän voi olla esimerkiksi kova kysyntä tai kohteen sijainti. Täytä asuntohakemus ja olemme sinuun yhteydessä näyttöaikaan liittyen mahdollisimman pikaisesti.
Olemme pahoillamme, mutta tämän kohteen näytöt ovat toistaiseksi suljettuna. Yleensä tähän on syynä kova kysyntä, jolloin näyttö on jo täynnä. Palaa myöhemmin katsomaan onko näyttö auennut uudestaan.
Avoinna ma-pe 9-17. Soittamisen sijaan voit täyttää myös näyttöajan ehdotuksen yläpuolelta.
KN-4625
Torpparintie 3
,
28450
Vanha-Ulvila
Heti vapaa
Kerrostalo
Kaksio
2h+k+kph+2vh+p
62
m²
3/3
Ei
Hyvä
627.07
€/kk
1 kuukauden vuokraa vastaava summa
1 kuukauden vuokraa vastaava summa ja henkilötakaus
2 kuukauden vuokraa vastaava summa
3 kuukauden vuokraa vastaava summa
(Vuokranantaja hyväksyy vakuudeksi jonkin yllä mainituista vakuustyypeistä)
100€ luottotiedolliselle hakijalle / sopimuksen mukaan
2 kuukauden vuokraa vastaava summa
3 kuukauden vuokraa vastaava summa
(Vuokranantaja hyväksyy vakuudeksi jonkin yllä mainituista vakuustyypeistä)
3 kuukauden vuokraa vastaava summa
(Vuokranantaja hyväksyy vakuudeksi vain 3 kuukauden vuokraa vastaavan summan)
3 kuukauden vuokraa vastaava summa
(Vuokranantaja hyväksyy vakuudeksi vain 3 kuukauden vuokraa vastaavan summan)
3 kuukauden vuokraa vastaava summa
(Vuokranantaja hyväksyy vakuudeksi vain 3 kuukauden vuokraa vastaavan summan)
Voit nyt myös ostaa vuokravakuuden tähän asuntoon hintaan 19,90€/kk. Tilinavaus- ja hoitokulut 0€. Voit valita Klik Vakuuspalvelun vakuudeksi asuntohakemusta täyttäessäsi.
Lue lisää täältä!
Voit nyt myös ostaa vakuuden tähän asuntoon hintaan 24,90€/kk. Tilinavaus- ja hoitokulut 0€. Voit valita Klik Vakuuspalvelun vakuudeksi asuntohakemusta täyttäessäsi.
Lue lisää täältä!
Voit nyt myös ostaa vakuuden tähän asuntoon hintaan 29,90€/kk. Tilinavaus- ja hoitokulut 0€. Voit valita Klik Vakuuspalvelun vakuudeksi asuntohakemusta täyttäessäsi.
Lue lisää täältä!
Voit nyt myös ostaa vakuuden tähän asuntoon hintaan 34,90€/kk. Tilinavaus- ja hoitokulut 0€. Voit valita Klik Vakuuspalvelun vakuudeksi asuntohakemusta täyttäessäsi.
Lue lisää täältä!
Kyllä (1kk vuokraa vastaava summa)
Sallittu
Ei sallittu
Vuokralainen tekee oman sähkösopimuksen
Sisältyy vuokraan, Kaukolämpö
Sisältyy vuokraan
muovimatto; suihkutapetti, peilikaappi, suihku; suihkuseinä, pesukonevalmius
erillinen keittiö, terästasot keittiössä; laminaattitasot keittiössä, sähköliesi; liesituuletin, pesukoneliitos, jääkaappipakastin, paljon kaappitilaa; paljon työskentelytilaa; suuri tiskipöytä
Tähän kohteeseen ei ole joko hankittu tai välitysliike ei ole vastaanottanut toimeksiantajalta energiatodistusta välitystehtävän hoitamiseksi. Lisätietoja siitä mitä merkitystä energiatodistuksen puuttumisella on vuokralaiselle, voit kysyä asiakaspalvelustamme toimisto@klikasuntovuokraus.fi
Ei energiatodistusta














