
Valoisa yksiö talon ensimmäisestä kerroksesta palveluiden viereltä!
Valoisa asunto rauhalliselta seudulta kätevästi ensimmäisestä kerroksesta. Tämä yksiö vastaa neliöitään melkeinpä pientä kaksiota.
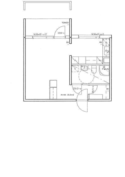
Asuntoon kuuluu reilun kokoinen keittokomero ja kaapistoja on hyvin tarjolla. Tilava asunto on helppo kalustaa. Alkovissa on paikka sängylle ja asuntoon kuuluu myös oma parveke. Tilava vaatehuone tuo säilytystilaa asuntoon kaapistojen lisäksi. Asunnolle kuuluu myös oma huoneistokohtainen varasto.
Talosauna on asukkaiden käytössä 7€/kk. Pihassa autopaikkamahdollisuus 5€/kk.
Talon välittömästä läheisyydestä löytyvät hyvät palvelut. Sale Vanha-Ulvila, Vanhakylän koulu sekä Päiväkoti Metsätähti sijaitsevat kaikki noin kilometrin säteellä talosta. Uimahalli löytyy sekin talon välittömästä läheisyydestä. Sijainti on siis mitä loistavin ja alue on rauhallinen.
Vakuus: 100€ luottotiedolliselle / Sopimuksen mukaan!
Vesi sisältyy vuokraan!
Ota rohkeasti yhteyttä, niin sovitaan kohteeseen yksityisesittely!
Kaikki muut kohteemme löydät kotisivuiltamme!
Muut ominaisuudet:
Lattiat: muovimattolattiat, seinät: maalatut seinät; tapetoidut seinät, katto: maalattu katto, ikkunat:tuuletusikkunat, makuualkovi; makuuhuoneessa säilytystilaa; makuuhuoneessa vaatekaapit ovilla; parisänky mahtuu makuutilaan; erillinen vaatehuone, avoparveke (ei lasitusta), Huoneistokohtaiset erilliset säilytystilat taloyhtiön käytännön mukaan; Erillinen varastotila sisältyy, muut tilat: autopaikat taloyhtiön käytännön mukaisesti; autopaikka vuokrattavissa; valoisa asunto; paljon ikkunoita; alkovi
Lisätietoa asuntohakemuksesta ja sen jättämisestä voit lukea painamalla tästä!
Tämän kohteen esittelyyn osallistuminen vaatii asuntohakemuksen täyttämisen. Syitä tähän voi olla esimerkiksi kova kysyntä tai kohteen sijainti. Täytä asuntohakemus ja olemme sinuun yhteydessä näyttöaikaan liittyen mahdollisimman pikaisesti.
Olemme pahoillamme, mutta tämän kohteen näytöt ovat toistaiseksi suljettuna. Yleensä tähän on syynä kova kysyntä, jolloin näyttö on jo täynnä. Palaa myöhemmin katsomaan onko näyttö auennut uudestaan.
Avoinna ma-pe 9-17. Soittamisen sijaan voit täyttää myös näyttöajan ehdotuksen yläpuolelta.
KN-5621
Torpparintie 5
,
28450
Vanha-Ulvila
Heti vapaa
Kerrostalo
Yksiö
1h+alkovi+kk+kph+vh+p
36
m²
1/3
Ei
Hyvä
425.11
€/kk
1 kuukauden vuokraa vastaava summa
1 kuukauden vuokraa vastaava summa ja henkilötakaus
2 kuukauden vuokraa vastaava summa
3 kuukauden vuokraa vastaava summa
(Vuokranantaja hyväksyy vakuudeksi jonkin yllä mainituista vakuustyypeistä)
100€ luottotiedolliselle hakijalle / sopimuksen mukaan
2 kuukauden vuokraa vastaava summa
3 kuukauden vuokraa vastaava summa
(Vuokranantaja hyväksyy vakuudeksi jonkin yllä mainituista vakuustyypeistä)
3 kuukauden vuokraa vastaava summa
(Vuokranantaja hyväksyy vakuudeksi vain 3 kuukauden vuokraa vastaavan summan)
3 kuukauden vuokraa vastaava summa
(Vuokranantaja hyväksyy vakuudeksi vain 3 kuukauden vuokraa vastaavan summan)
3 kuukauden vuokraa vastaava summa
(Vuokranantaja hyväksyy vakuudeksi vain 3 kuukauden vuokraa vastaavan summan)
Voit nyt myös ostaa vuokravakuuden tähän asuntoon hintaan 19,90€/kk. Tilinavaus- ja hoitokulut 0€. Voit valita Klik Vakuuspalvelun vakuudeksi asuntohakemusta täyttäessäsi.
Lue lisää täältä!
Voit nyt myös ostaa vakuuden tähän asuntoon hintaan 24,90€/kk. Tilinavaus- ja hoitokulut 0€. Voit valita Klik Vakuuspalvelun vakuudeksi asuntohakemusta täyttäessäsi.
Lue lisää täältä!
Voit nyt myös ostaa vakuuden tähän asuntoon hintaan 29,90€/kk. Tilinavaus- ja hoitokulut 0€. Voit valita Klik Vakuuspalvelun vakuudeksi asuntohakemusta täyttäessäsi.
Lue lisää täältä!
Voit nyt myös ostaa vakuuden tähän asuntoon hintaan 34,90€/kk. Tilinavaus- ja hoitokulut 0€. Voit valita Klik Vakuuspalvelun vakuudeksi asuntohakemusta täyttäessäsi.
Lue lisää täältä!
Kyllä (1kk vuokraa vastaava summa)
Sallittu
Ei sallittu
Vuokralainen tekee oman sähkösopimuksen
Sisältyy vuokraan, kaukolämpö
Sisältyy vuokraan
muovimatto; laattaseinä, peilikaappi, suihku; suihkukaappi, pesukonevalmius
keittokomero, terästasot keittiössä; laminaattitasot keittiössä, sähköliesi; liesituuletin, pesukoneliitos, astianpesukone on mahdollista asentaa, jääkaappipakastin, paljon kaappitilaa; paljon työskentelytilaa; suuri tiskipöytä; mikrohylly
Tähän kohteeseen ei ole joko hankittu tai välitysliike ei ole vastaanottanut toimeksiantajalta energiatodistusta välitystehtävän hoitamiseksi. Lisätietoja siitä mitä merkitystä energiatodistuksen puuttumisella on vuokralaiselle, voit kysyä asiakaspalvelustamme toimisto@klikasuntovuokraus.fi
Ei energiatodistusta















