
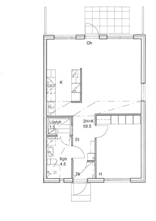
Tämä asunto on kauttaaltaan siistissä kunnossa ja omaa hyvän pohjaratkaisun.
Makuuhuone on hyvän kokoinen ja säilytystilaa on hyvin kaappien muodossa. Tilavasta olohuoneesta on käynti omalle takapihalle. Keittiössä on hyvin kaappitilaa ja ruokapöytäkin mahtuu tilan yhteyteen. Keittiössä valmiit liitännät ja paikka astianpesukoneelle, joten helppo asentaa tarvittaessa. Kylpyhuone on reilun kokoinen ja pesukoneelle on hyvä paikka. Kylpyhuoneen kruunaa lattialämmitys ja oma sauna.
Käytössäsi on myös oma ulkovarasto sekä ulkovälinevarasto. Pihassa on mahdollisuus tolpalliseen autopaikkaan. Päiväkoti aivan vieressä, eikä lähikauppaankaan ole kuin n. 500m. Valtatie 2 pitkin pääse nopeasti tarvittaessa Poriin.
Lämmityskustannuksia ei tarvitse talven kovillakaan pakkasilla, sillä lämmitys sisältyy vuokraan ja vesimaksukin on edullinen 10€/hlö/kk.
Asunnolle kuuluu pistokkeellinen autopaikka 5€/kk.
Ota rohkeasti yhteyttä, niin sovitaan kohteeseen yksityisesittely!
Kaikki muut kohteemme löydät kotisivuiltamme!
*** Vuokralaisen on mahdollista korvata vakuus Klik Vakuuspalvelulla. Vakuuspalvelun hinta on alk. 19,90€/kk, ei avausmaksua tai tilinhoitomaksua! Lue lisää: https://www.klikasuntovuokraus.fi/vuokralaiset/vakuuspalvelu ***
***Tämän kohteen kohdenumero on KN-6906***
Muut tiedot:
muovimattolattiat, maalatut seinät; tapetoidut seinät, maalattu katto, sälekaihtimet; tuuletusikkunat, eteisessä kaapistot; makuuhuoneessa kaapistot, erillinen makuuhuone; makuuhuoneessa säilytystilaa; parisänky mahtuu makuutilaan, , Huoneistokohtaiset erilliset säilytystilat taloyhtiön käytännön mukaan, autopaikat taloyhtiön käytännön mukaisesti; autopaikka vuokrattavissa; valoisa asunto; paljon ikkunoita; oma piha; päätyhuoneisto; useampi sisäänkäynti; koneellinen ilmanvaihto; kuraeteinen
Lisätietoa asuntohakemuksesta ja sen jättämisestä voit lukea painamalla tästä!
Tämän kohteen esittelyyn osallistuminen vaatii asuntohakemuksen täyttämisen. Syitä tähän voi olla esimerkiksi kova kysyntä tai kohteen sijainti. Täytä asuntohakemus ja olemme sinuun yhteydessä näyttöaikaan liittyen mahdollisimman pikaisesti.
Olemme pahoillamme, mutta tämän kohteen näytöt ovat toistaiseksi suljettuna. Yleensä tähän on syynä kova kysyntä, jolloin näyttö on jo täynnä. Palaa myöhemmin katsomaan onko näyttö auennut uudestaan.
Avoinna ma-pe 9-17. Soittamisen sijaan voit täyttää myös näyttöajan ehdotuksen yläpuolelta.
KN-6906
Vainiolantie 7
,
28400
Ulvila
Heti vapaa
Rivitalo
Kaksio
2h+k+kph+s+autopaikka
60
m²
1/1
Ei
Hyvä
777.00
€/kk
1 kuukauden vuokraa vastaava summa
1 kuukauden vuokraa vastaava summa ja henkilötakaus
2 kuukauden vuokraa vastaava summa
3 kuukauden vuokraa vastaava summa
(Vuokranantaja hyväksyy vakuudeksi jonkin yllä mainituista vakuustyypeistä)
100€ luottotiedolliselle hakijalle / sopimuksen mukaan
2 kuukauden vuokraa vastaava summa
3 kuukauden vuokraa vastaava summa
(Vuokranantaja hyväksyy vakuudeksi jonkin yllä mainituista vakuustyypeistä)
3 kuukauden vuokraa vastaava summa
(Vuokranantaja hyväksyy vakuudeksi vain 3 kuukauden vuokraa vastaavan summan)
3 kuukauden vuokraa vastaava summa
(Vuokranantaja hyväksyy vakuudeksi vain 3 kuukauden vuokraa vastaavan summan)
3 kuukauden vuokraa vastaava summa
(Vuokranantaja hyväksyy vakuudeksi vain 3 kuukauden vuokraa vastaavan summan)
Voit nyt myös ostaa vuokravakuuden tähän asuntoon hintaan 19,90€/kk. Tilinavaus- ja hoitokulut 0€. Voit valita Klik Vakuuspalvelun vakuudeksi asuntohakemusta täyttäessäsi.
Lue lisää täältä!
Voit nyt myös ostaa vakuuden tähän asuntoon hintaan 24,90€/kk. Tilinavaus- ja hoitokulut 0€. Voit valita Klik Vakuuspalvelun vakuudeksi asuntohakemusta täyttäessäsi.
Lue lisää täältä!
Voit nyt myös ostaa vakuuden tähän asuntoon hintaan 29,90€/kk. Tilinavaus- ja hoitokulut 0€. Voit valita Klik Vakuuspalvelun vakuudeksi asuntohakemusta täyttäessäsi.
Lue lisää täältä!
Voit nyt myös ostaa vakuuden tähän asuntoon hintaan 34,90€/kk. Tilinavaus- ja hoitokulut 0€. Voit valita Klik Vakuuspalvelun vakuudeksi asuntohakemusta täyttäessäsi.
Lue lisää täältä!
Kyllä (1kk vuokraa vastaava summa)
Sallittu
Ei sallittu
Vuokralainen tekee oman sähkösopimuksen
Lämmitys sisältyy vuokraan, Kaukolämpö
10€/hlö/kk
laattalattia; laattaseinä, peilikaappi, suihku, pesukonevalmius, kylpyhuoneessa lattialämmitys; oma sauna; kylpyhuoneessa avattava ikkuna
erillinen keittiö, laminaattitasot keittiössä, sähköliesi; liesituuletin, pesukoneliitos, astianpesukone on mahdollista asentaa, jääkaappipakastin, tilaa isolle ruokapöydälle; paljon kaappitilaa; paljon työskentelytilaa; suuri tiskipöytä; mikrohylly
Tähän kohteeseen ei ole joko hankittu tai välitysliike ei ole vastaanottanut toimeksiantajalta energiatodistusta välitystehtävän hoitamiseksi. Lisätietoja siitä mitä merkitystä energiatodistuksen puuttumisella on vuokralaiselle, voit kysyä asiakaspalvelustamme toimisto@klikasuntovuokraus.fi















