
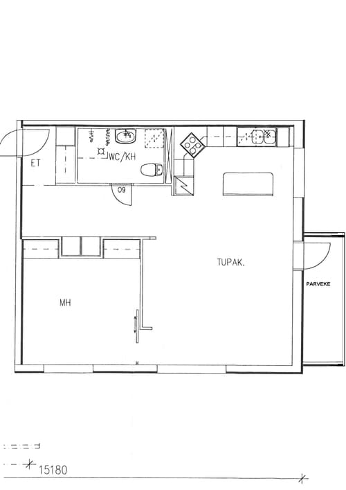
Tilava kaksio siisteillä pinnoilla ja parvekkeella. Asunto on kauttaaltaan siistissä kunnossa. Makuuhuoneeseen mahtuu hyvin parisänky ja säilytystilaa löytyy hyvin kaappien muodossa. Makuuhuone on jaettavissa erilleen liukuovella. Keittiö ja olohuone ovat avarasti yhdessä. Keittiössä kätevä saareke tuomassa lisää työtilaa. Keittiössä on varaus tiskikoneelle, joten se on helppo asentaa tarvittaessa.
Olohuoneesta on käynti hyvän kokoiselle parvekkeelle. Parvekkeen näkymät avautuvat puistoon. Tilavassa kylpyhuoneessa on paikka pesukoneelle tai pesutornillekin. Taloyhtiössä on mm. sauna, pyörävarastot ja häkkivarastot.
Sijainti on mitä mainioin; välittömässä läheisyydessä muutaman sadan metrin säteellä on mm. kauppa, ala-aste, päiväkoti sekä leikkipuisto.
Muut ominaisuudet:
Lattiat: muovimattolattiat, seinät: maalatut seinät; tapetoidut seinät, katto: maalattu katto, ikkunat:tuuletusikkunat, erillinen makuuhuone; makuuhuoneessa säilytystilaa; makuuhuoneessa vaatekaapit; parisänky mahtuu makuutilaan, avoparveke (ei lasitusta), Huoneistokohtaiset erilliset säilytystilat taloyhtiön käytännön mukaan, muut tilat: autopaikat taloyhtiön käytännön mukaisesti; valoisa asunto
Lisätietoa asuntohakemuksesta ja sen jättämisestä voit lukea painamalla tästä!
Tämän kohteen esittelyyn osallistuminen vaatii asuntohakemuksen täyttämisen. Syitä tähän voi olla esimerkiksi kova kysyntä tai kohteen sijainti. Täytä asuntohakemus ja olemme sinuun yhteydessä näyttöaikaan liittyen mahdollisimman pikaisesti.
Olemme pahoillamme, mutta tämän kohteen näytöt ovat toistaiseksi suljettuna. Yleensä tähän on syynä kova kysyntä, jolloin näyttö on jo täynnä. Palaa myöhemmin katsomaan onko näyttö auennut uudestaan.
Avoinna ma-pe 9-17. Soittamisen sijaan voit täyttää myös näyttöajan ehdotuksen yläpuolelta.
KN-4590
Västäräkinpolku 5
,
28450
Vanha-Ulvila
Heti vapaa
Kerrostalo
Kaksio
2h+avok+kph+p
59
m²
3/3
Ei
Hyvä
632.24
€/kk
Toistaiseksi voimassa oleva
1 kuukauden vuokraa vastaava summa
1 kuukauden vuokraa vastaava summa ja henkilötakaus
2 kuukauden vuokraa vastaava summa
3 kuukauden vuokraa vastaava summa
(Vuokranantaja hyväksyy vakuudeksi jonkin yllä mainituista vakuustyypeistä)
100€ luottotiedolliselle hakijalle / sopimuksen mukaan
2 kuukauden vuokraa vastaava summa
3 kuukauden vuokraa vastaava summa
(Vuokranantaja hyväksyy vakuudeksi jonkin yllä mainituista vakuustyypeistä)
3 kuukauden vuokraa vastaava summa
(Vuokranantaja hyväksyy vakuudeksi vain 3 kuukauden vuokraa vastaavan summan)
3 kuukauden vuokraa vastaava summa
(Vuokranantaja hyväksyy vakuudeksi vain 3 kuukauden vuokraa vastaavan summan)
3 kuukauden vuokraa vastaava summa
(Vuokranantaja hyväksyy vakuudeksi vain 3 kuukauden vuokraa vastaavan summan)
Voit nyt myös ostaa vuokravakuuden tähän asuntoon hintaan 19,90€/kk. Tilinavaus- ja hoitokulut 0€. Voit valita Klik Vakuuspalvelun vakuudeksi asuntohakemusta täyttäessäsi.
Lue lisää täältä!
Voit nyt myös ostaa vakuuden tähän asuntoon hintaan 24,90€/kk. Tilinavaus- ja hoitokulut 0€. Voit valita Klik Vakuuspalvelun vakuudeksi asuntohakemusta täyttäessäsi.
Lue lisää täältä!
Voit nyt myös ostaa vakuuden tähän asuntoon hintaan 29,90€/kk. Tilinavaus- ja hoitokulut 0€. Voit valita Klik Vakuuspalvelun vakuudeksi asuntohakemusta täyttäessäsi.
Lue lisää täältä!
Voit nyt myös ostaa vakuuden tähän asuntoon hintaan 34,90€/kk. Tilinavaus- ja hoitokulut 0€. Voit valita Klik Vakuuspalvelun vakuudeksi asuntohakemusta täyttäessäsi.
Lue lisää täältä!
Kyllä (1kk vuokraa vastaava summa)
Sallittu
Ei sallittu
Vuokralainen tekee oman sähkösopimuksen
Sisältyy vuokraan, Kaukolämpö
Sisältyy vuokraan
muovimatto; laattaseinä, peilikaappi, suihku, pesukonevalmius, rättipatteri
avokeittiö, terästasot keittiössä; laminaattitasot keittiössä, sähköliesi; liesituuletin, pesukoneliitos, jääkaappipakastin, tilaa isolle ruokapöydälle; paljon kaappitilaa; paljon työskentelytilaa; suuri tiskipöytä
Tähän kohteeseen ei ole joko hankittu tai välitysliike ei ole vastaanottanut toimeksiantajalta energiatodistusta välitystehtävän hoitamiseksi. Lisätietoja siitä mitä merkitystä energiatodistuksen puuttumisella on vuokralaiselle, voit kysyä asiakaspalvelustamme toimisto@klikasuntovuokraus.fi
Ei energiatodistusta

















