
Valoisa läpitalon kolmio siisteillä pinnoilla palveluiden ääreltä!
Ensimmäisen kerroksen hyväkuntoinen läpitalon asunto. Koko asuntoon on hiljattain laitettu vaalea laminaatti ja seinät on maalattu, joten yleisilme on hyvin siisti. Läpitalon asunto on valoisa ja ensimmäiseen kerrokseen kulku on vaivatonta.
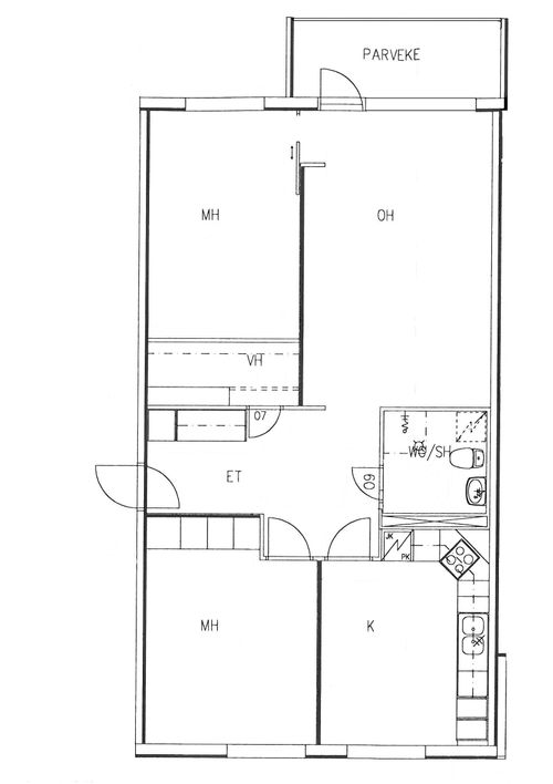
Keittiössä on paljon kaappitilaa ja vaaleat pinnat. Astianpesukoneelle on liitännät ja valmis paikka, joten sellaisen saa asennettua helposti. Keittiöön mahtuu vaivatta ruokailuryhmäkin. Olohuone on tilava ja sen yhteydessä on oma parveke. Makuuhuoneissa on kaapistot ja lisää säilytystilaa löytyy eteiskaapeista. Erillinen vaatehuone kuuluu myös tähän asuntoon. Kylpyhuone on tilava ja sinne saa pesukoneen tai vaikka pesutornin tarvittaessa.
Talon läheisyydessä sijaitsee Sale Vanha-Ulvila, Vanhakylän koulu sekä Päiväkoti metsätähti. Alueella on myös leikkipuistoja lapsille sekä hyvät lenkkimaastot.
Talosta löytyy mm. häkkivarastot ja talosauna on asukkaiden käytössä 7€/kk.
Pihassa autopaikkamahdollisuus 5€/kk.
Vakuus: 100€ luottotiedolliselle / Sopimuksen mukaan!
Vesi sisältyy asunnon vuokraan!
Ota rohkeasti yhteyttä, niin sovitaan kohteeseen yksityisesittely!
Kaikki muut kohteemme löydät kotisivuiltamme!
Muut ominaisuudet:
Lattiat: laminaattilattiat, seinät: maalatut seinät, katto: maalattu katto, ikkunat:tuuletusikkunat, erillinen makuuhuone; useita makuuhuoneita; makuuhuoneessa säilytystilaa; parisänky mahtuu makuutilaan; erillinen vaatehuone, avoparveke (ei lasitusta), Huoneistokohtaiset erilliset säilytystilat taloyhtiön käytännön mukaan, muut tilat: autopaikat taloyhtiön käytännön mukaisesti; valoisa asunto
Lisätietoa asuntohakemuksesta ja sen jättämisestä voit lukea painamalla tästä!
Tämän kohteen esittelyyn osallistuminen vaatii asuntohakemuksen täyttämisen. Syitä tähän voi olla esimerkiksi kova kysyntä tai kohteen sijainti. Täytä asuntohakemus ja olemme sinuun yhteydessä näyttöaikaan liittyen mahdollisimman pikaisesti.
Olemme pahoillamme, mutta tämän kohteen näytöt ovat toistaiseksi suljettuna. Yleensä tähän on syynä kova kysyntä, jolloin näyttö on jo täynnä. Palaa myöhemmin katsomaan onko näyttö auennut uudestaan.
Avoinna ma-pe 9-17. Soittamisen sijaan voit täyttää myös näyttöajan ehdotuksen yläpuolelta.
KN-6078
Västäräkinpolku 5
,
28450
Vanha-Ulvila
Heti vapaa
Kerrostalo
Kolmio tai isompi
3h+k+kph+vh+p
77
m²
1/3
Ei
Hyvä
813.94
€/kk
1 kuukauden vuokraa vastaava summa
1 kuukauden vuokraa vastaava summa ja henkilötakaus
2 kuukauden vuokraa vastaava summa
3 kuukauden vuokraa vastaava summa
(Vuokranantaja hyväksyy vakuudeksi jonkin yllä mainituista vakuustyypeistä)
100€ luottotiedolliselle hakijalle / sopimuksen mukaan
2 kuukauden vuokraa vastaava summa
3 kuukauden vuokraa vastaava summa
(Vuokranantaja hyväksyy vakuudeksi jonkin yllä mainituista vakuustyypeistä)
3 kuukauden vuokraa vastaava summa
(Vuokranantaja hyväksyy vakuudeksi vain 3 kuukauden vuokraa vastaavan summan)
3 kuukauden vuokraa vastaava summa
(Vuokranantaja hyväksyy vakuudeksi vain 3 kuukauden vuokraa vastaavan summan)
3 kuukauden vuokraa vastaava summa
(Vuokranantaja hyväksyy vakuudeksi vain 3 kuukauden vuokraa vastaavan summan)
Voit nyt myös ostaa vuokravakuuden tähän asuntoon hintaan 19,90€/kk. Tilinavaus- ja hoitokulut 0€. Voit valita Klik Vakuuspalvelun vakuudeksi asuntohakemusta täyttäessäsi.
Lue lisää täältä!
Voit nyt myös ostaa vakuuden tähän asuntoon hintaan 24,90€/kk. Tilinavaus- ja hoitokulut 0€. Voit valita Klik Vakuuspalvelun vakuudeksi asuntohakemusta täyttäessäsi.
Lue lisää täältä!
Voit nyt myös ostaa vakuuden tähän asuntoon hintaan 29,90€/kk. Tilinavaus- ja hoitokulut 0€. Voit valita Klik Vakuuspalvelun vakuudeksi asuntohakemusta täyttäessäsi.
Lue lisää täältä!
Voit nyt myös ostaa vakuuden tähän asuntoon hintaan 34,90€/kk. Tilinavaus- ja hoitokulut 0€. Voit valita Klik Vakuuspalvelun vakuudeksi asuntohakemusta täyttäessäsi.
Lue lisää täältä!
Kyllä (1kk vuokraa vastaava summa)
Sallittu
Ei sallittu
Vuokralainen tekee oman sähkösopimuksen
Sisältyy vuokraan, kaukolämpö
Sisältyy vuokraan
muovimatto; laattaseinä, peilikaappi, suihku, pesukonevalmius
erillinen keittiö, terästasot keittiössä; laminaattitasot keittiössä, sähköliesi; liesituuletin, pesukoneliitos, astianpesukone on mahdollista asentaa, jääkaappipakastin, tilaa isolle ruokapöydälle; paljon kaappitilaa; paljon työskentelytilaa; suuri tiskipöytä
Tähän kohteeseen ei ole joko hankittu tai välitysliike ei ole vastaanottanut toimeksiantajalta energiatodistusta välitystehtävän hoitamiseksi. Lisätietoja siitä mitä merkitystä energiatodistuksen puuttumisella on vuokralaiselle, voit kysyä asiakaspalvelustamme toimisto@klikasuntovuokraus.fi
Ei energiatodistusta

















