
Tilava läpitalon kuudennen kerroksen parvekkeellinen kaksio!
Valoisa erittäin siisti kokonaisuus, jossa on tilavat huoneet ja hyvä pohjaratkaisu.
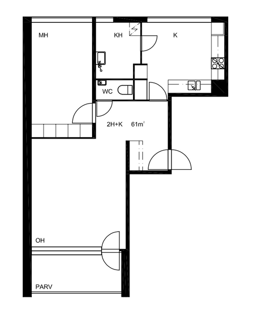
Kauttaaltaan hiljattain remontoitu tilava kaksio Koivulasta, jossa on hyvin asuinneliöitä.
Keittiö on erittäin siistissä kunnossa kodinkoneita myöden. Säilytystilaa on runsaasti, ruokapöydälle on hyvin tilaa. Astianpesukone asennetaan vielä ennen uutta asukasta.
Olohuone on hyvin valoisa koko huoneen mittaisen parvekkeen ansiosta. Makuuhuoneessa on runsaasti kaappitilaa ja sängylle on hyvä paikka huoneessa.
Kylpyhuone on myös siistikuntoinen ja se on erittäin tilava. Lisäksi asunnossa on erillinen wc.
Rauhallista aluetta ja hyvin hoidettu taloyhtiö. Taloyhtiöstä löytyy talosauna, pyöräsuoja sekä huoneistokohtaiset varastot asukkaiden käyttöön. Taloyhtiön hissit (maan tasalta) on juuri uusittu ja ulko-ovet automatisoitu. Pihassa suoraan vapaana autopaikkoja 15€/kk.
Sijainniltaan Koivulan alue on erinomainen. Lähimpään ruokakauppaan on matkaa noin 500 metriä. Subway on tien toisella puolen. McDonalds n. 500m ja keskustaankin on alle 2 kilometriä! Lisäksi aivan lähistöllä on koulu, päiväkoti sekä hyvät ulkoilumahdollisuudet. Alue on maineeltaan rauhallista ja alueella on myös hyvät lenkkipolut sekä bussiyhteydet. Alle kahden kilometrin säteeltä löytyvät myös kaksi kuntosalia sekä keskustan uimahalli.
Taloyhtiö laajakaistan perusnopeus sisältyy vuokraan ja on edullinen päivittää tarvittaessa nopeampaan.
Ota rohkeasti yhteyttä, niin sovitaan kohteeseen yksityisesittely!
Kaikki muut kohteemme löydät kotisivuiltamme!
*** Vuokralaisen on mahdollista korvata vakuus Klik Vakuuspalvelulla. Vakuuspalvelun hinta on alk. 19,90€/kk, ei avausmaksua tai tilinhoitomaksua! Lue lisää: https://www.klikasuntovuokraus.fi/vuokralaiset/vakuuspalvelu ***
***Tämän kohteen kohdenumero on KN-7054***
Muut tiedot:
laminaattilattiat, maalatut seinät; tapetoidut seinät, maalattu katto, tuuletusikkunat, eteisessä kaapistot; makuuhuoneessa kaapistot, erillinen makuuhuone; makuuhuoneessa säilytystilaa; parisänky mahtuu makuutilaan, avoparveke (ei lasitusta), Huoneistokohtaiset erilliset säilytystilat taloyhtiön käytännön mukaan, autopaikat taloyhtiön käytännön mukaisesti; autopaikka vuokrattavissa; valoisa asunto; paljon ikkunoita
Lisätietoa asuntohakemuksesta ja sen jättämisestä voit lukea painamalla tästä!
Tämän kohteen esittelyyn osallistuminen vaatii asuntohakemuksen täyttämisen. Syitä tähän voi olla esimerkiksi kova kysyntä tai kohteen sijainti. Täytä asuntohakemus ja olemme sinuun yhteydessä näyttöaikaan liittyen mahdollisimman pikaisesti.
Olemme pahoillamme, mutta tämän kohteen näytöt ovat toistaiseksi suljettuna. Yleensä tähän on syynä kova kysyntä, jolloin näyttö on jo täynnä. Palaa myöhemmin katsomaan onko näyttö auennut uudestaan.
Avoinna ma-pe 9-17. Soittamisen sijaan voit täyttää myös näyttöajan ehdotuksen yläpuolelta.
KN-7054
Visatie 3
,
28360
Pori
01.09.2024
Kerrostalo
Kaksio
2h+k+kph+wc+p
61
m²
6/7
Kyllä
Hyvä
560.00
€/kk
Toistaiseksi voimassaoleva vuokrasopimus
1 kuukauden vuokraa vastaava summa
1 kuukauden vuokraa vastaava summa ja henkilötakaus
2 kuukauden vuokraa vastaava summa
3 kuukauden vuokraa vastaava summa
(Vuokranantaja hyväksyy vakuudeksi jonkin yllä mainituista vakuustyypeistä)
1 kuukauden vuokraa vastaava summa ja henkilötakaus / 2 kuukauden vuokraa vastaava summa
2 kuukauden vuokraa vastaava summa
3 kuukauden vuokraa vastaava summa
(Vuokranantaja hyväksyy vakuudeksi jonkin yllä mainituista vakuustyypeistä)
3 kuukauden vuokraa vastaava summa
(Vuokranantaja hyväksyy vakuudeksi vain 3 kuukauden vuokraa vastaavan summan)
3 kuukauden vuokraa vastaava summa
(Vuokranantaja hyväksyy vakuudeksi vain 3 kuukauden vuokraa vastaavan summan)
3 kuukauden vuokraa vastaava summa
(Vuokranantaja hyväksyy vakuudeksi vain 3 kuukauden vuokraa vastaavan summan)
Voit nyt myös ostaa vuokravakuuden tähän asuntoon hintaan 19,90€/kk. Tilinavaus- ja hoitokulut 0€. Voit valita Klik Vakuuspalvelun vakuudeksi asuntohakemusta täyttäessäsi. 
Lue lisää täältä!
Voit nyt myös ostaa vakuuden tähän asuntoon hintaan 24,90€/kk. Tilinavaus- ja hoitokulut 0€. Voit valita Klik Vakuuspalvelun vakuudeksi asuntohakemusta täyttäessäsi. 
Lue lisää täältä!
Voit nyt myös ostaa vakuuden tähän asuntoon hintaan 29,90€/kk. Tilinavaus- ja hoitokulut 0€. Voit valita Klik Vakuuspalvelun vakuudeksi asuntohakemusta täyttäessäsi. 
Lue lisää täältä!
Voit nyt myös ostaa vakuuden tähän asuntoon hintaan 34,90€/kk. Tilinavaus- ja hoitokulut 0€. Voit valita Klik Vakuuspalvelun vakuudeksi asuntohakemusta täyttäessäsi. 
Lue lisää täältä!
Kyllä (1kk vuokraa vastaava summa)
Ei sallittu
Ei sallittu
Vuokralainen tekee oman sähkösopimuksen
Lämmitys sisältyy vuokraan, Kaukolämpö
21€/hlö/kk
laattalattia; laattaseinä, , peilikaappi, suihku, , pesukonevalmius, kylpyhuoneessa avattava ikkuna; taloyhtiössä sauna
erillinen keittiö, laminaattitasot keittiössä, sähköliesi; liesituuletin, astianpesukone (45cm), jääkaappipakastin, tilaa isolle ruokapöydälle; paljon kaappitilaa; paljon työskentelytilaa; mikrohylly
As. Oy Visatie 3
Kaapeli
Sata-Isännöinti
City Talohuolto
Tähän kohteeseen ei ole joko hankittu tai välitysliike ei ole vastaanottanut toimeksiantajalta energiatodistusta välitystehtävän hoitamiseksi. Lisätietoja siitä mitä merkitystä energiatodistuksen puuttumisella on vuokralaiselle, voit kysyä asiakaspalvelustamme toimisto@klikasuntovuokraus.fi















_low.jpg)
_low.jpg)
_low.jpg)
_low%20(1).jpg)
.jpg)